Selectable Support Options選べるサポート
図面+パース
動線・ゾーニング・法規確認。外観/内観のイメージパースで完成像を事前確認。
- 現調・法規チェック
- 基本設計→実施図
- 外観/内観パース
集客
ロゴ・看板・販促物、SNS/MEO、広告初期運用でオープン前から集客導線を用意。
- ロゴ/看板/販促物
- SNS・MEO立上げ
- 広告初期運用
HP作成
店舗イメージとサービス内容の訴求に重点。予約・問い合わせ導線でコンバージョンを確保。
- 簡易LP/多ページ
- 撮影・掲載/解析
- Googleビジネス
税務サポート
知識がなくても安心。会計フロー整備と税理士連携で日々の処理〜決算までスムーズ。
- 会計処理フロー設計
- 税理士紹介・初回相談
- 請求/レジ連携の整理
LINE公式運用
クーポン配信・リッチメニューでリピート促進。小売/飲食向けの運用設計。
- 初期設定/友だち施策
- 配信運用/反応改善
- リッチメニュー制作
※各項目は単独でも提供可能。ヒアリングに応じて最適な組み合わせをご提案します。
Support Options & Pricing Overview選べるサポートの内容と料金イメージ
料金は選択内容と規模により変動します。まずは無料相談で要件を整理し、個別見積をご提示します(施工費は「ご相談」)。
図面+イメージパース
運営視点の動線設計と法規確認を実施。外観/内観パースで完成イメージを共有し、手戻りを防ぎます。
- 現調/法規→基本設計→実施図
- 外観/内観パース制作
- 工程・概算の見える化
10万円~
集客(販促・広告)
オープン前告知〜初月施策を設計。ロゴ・看板・販促物とSNS/MEOで“見つけてもらう”状態に。
- ロゴ/看板/販促セット
- SNS/MEO初期設定
- 広告初期運用(Google/Meta)
10万円~
HP作成(予約導線+訴求)
店舗の世界観とサービス内容を伝えるコピー・構成を設計。予約/問合せの導線で来店につなげます。
- LP/小規模サイト制作
- 撮影・原稿作成サポート
- ドメイン/解析/高速化設定
20万円~
税務サポート(税理士連携)
会計ルールを最初に整えて後悔しない運用に。経理フローと帳票の持ち方を定義し、実務をラクに。
- 会計フロー設計/初期設定
- 税理士紹介・初回相談
- 請求/レジ/口座の整備
3万円~
LINE公式アカウント運用
再来店を生む仕組みづくり。来店後の体験と連動した配信設計で、常連化を促します。
- 初期設定/友だち獲得施策
- クーポン/配信運用・改善
- リッチメニュー制作・更新
初期費用:10万円~
運用:月額5万円~
施工(ご相談)
設計内容に沿って信頼できる施工業者を選定。見積提案や工程調整まで並走します。
- 工務店・施工業者の紹介
- 相見積取りまとめ/工程調整
- 施工費:ご相談
Case Studies事例集
パースイメージ
※エリアをドラッグ(スワイプ)で左右にスクロールできます。また、画像をクリック(タップ)すると拡大表示されます。
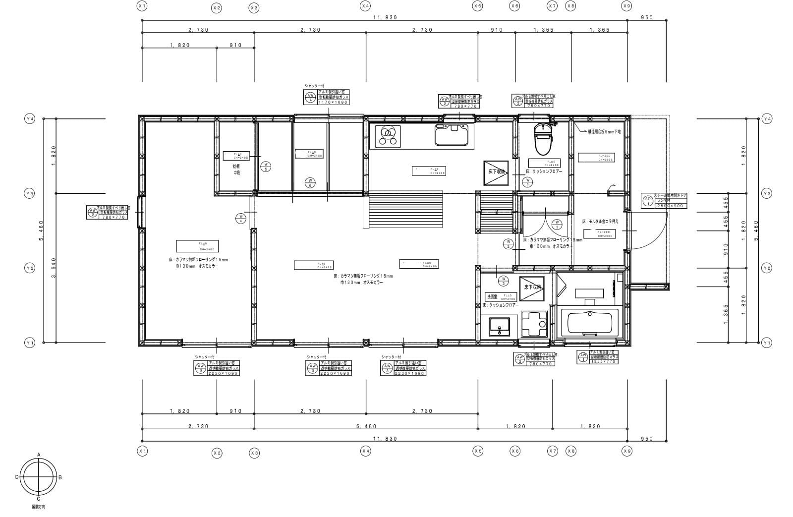
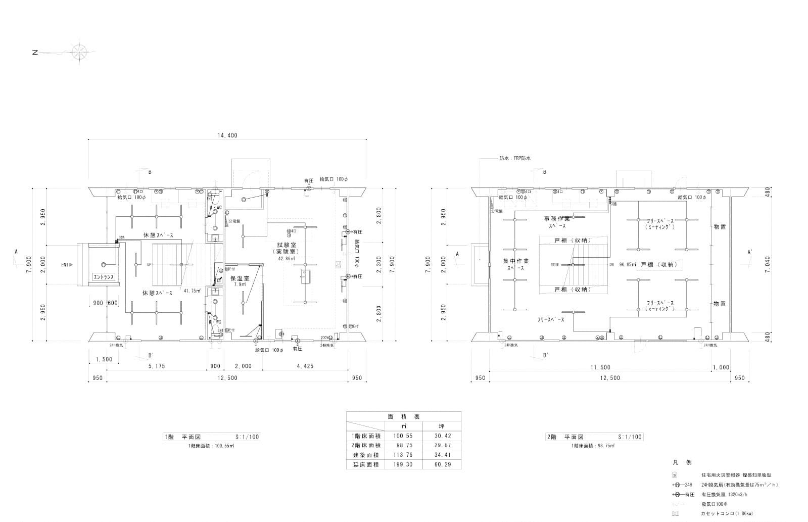
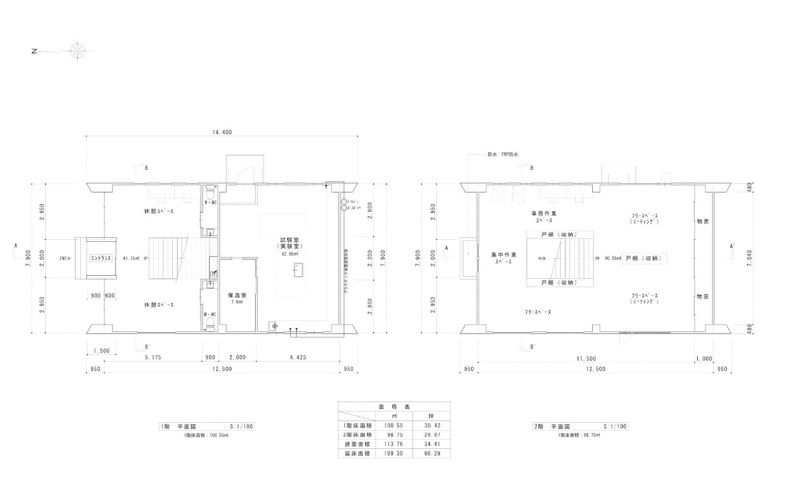
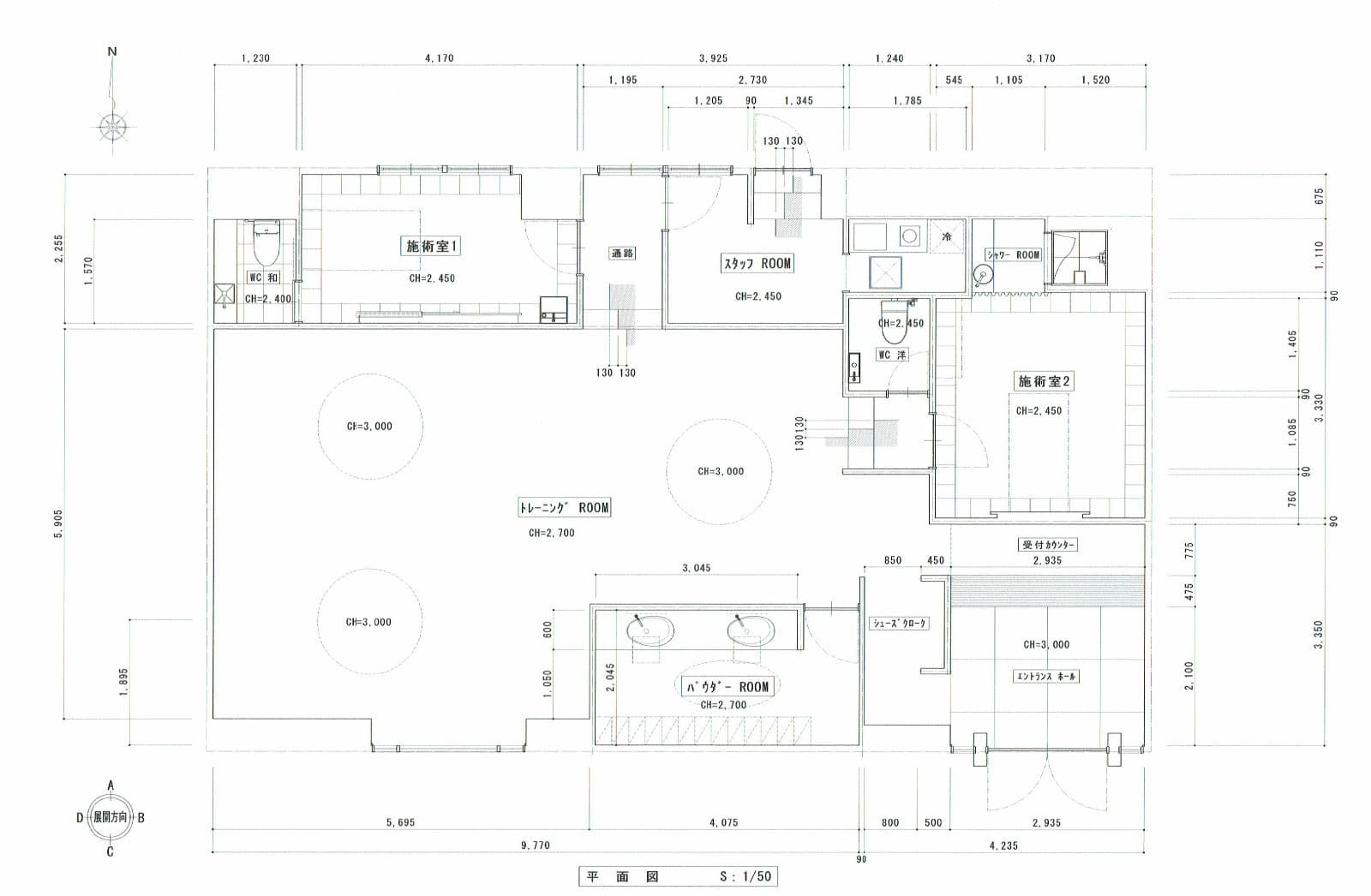
施工図面イメージ
※エリアをドラッグ(スワイプ)で左右にスクロールできます。また、画像をクリック(タップ)すると拡大表示されます。
施工実績
※エリアをドラッグ(スワイプ)で左右にスクロールできます。また、画像をクリック(タップ)すると拡大表示されます。
Store Construction Details店舗工事内容
内装工事
外装工事
空調・換気設備工事
給排水設備工事
衛生機器設置工事
ガラス設置工事
※設計内容・規模により施工会社を選定。見積・工程は各社条件に準拠します。
How It Works進め方
STEP 1診断
要件ヒアリング/優先度整理
STEP 2サポート内容選定
図面/集客/HP/税務/LINE/施工
STEP 3プラン設計
現調・法規→基本設計
STEP 4制作
図面確定→販促/HP/LINE着手
STEP 5施工斡旋
紹介/相見積/工程調整
STEP 6オープン支援
撮影/運用フォロー
FAQよくあるご質問
図面だけでもお願いできますか?
はい可能です。
図面・施工を依頼しなくても大丈夫ですか?
はい可能です。店舗プロモーション全般承っております。
例)LINE公式アカウント運用代行のみのご依頼も可能です。
相談方法は?
zoomによるオンライン相談となります。
※案件次第では対面でのご相談も可能です。
(愛知県近郊エリア外の場合は別途交通費が発生する場合がございます)
費用はどのタイミングから発生しますか?
図面・パースの制作に着手、各種プロモーションの準備開始の時点からご請求対象となります。
※基本初期段階におけるオンラインでのヒアリング時点では料金は発生しません。
支払い方法は?
請求書を発行いたしますので、期日までに指定口座へのお振込みとなります。
※着手金(総額の30〜50%)をお支払いいただいた後、業務開始となります。
途中キャンセルは可能ですか?
作業の中断・中止は可能ですが、それまでに発生した費用はご請求対象となります。
急ぎの案件でも対応可能ですか?
極力ご希望にお応えできる様対応いたしますが、タイミング・内容によりご要望にお応えできかねる場合がございます。
全ての業種業態に対応可能ですか?
内容によってはお断りする場合がございますのでご了承ください。
全国対応可能ですか?
施工パートに関しては、弊社側が調達可能なエリアでしたら対応可能です。
※施工以外は全国対応可能です。
Free Consultation Request Formまずは無料相談で、
最適なサポートを設計
必要な要素だけを選んで、
ムダなくスピーディーに開業へ。
































































